ホーム
>
施設情報
>
施設情報
>
利用案内
利用案内
小郡校区コミュニティセンター(愛称:小郡交流センター)は令和7年3月に大規模改修工事を終え、装いを新たに地域のみなさんに親しんでいただく施設としてリニューアルオープンします。(供用開始は令和7年4月1日です)
充実した学習室等の貸室の他、自由に使用できる学習スペースや、簡単な打ち合わせ等に使用できるフリースペースも備えています。
少子高齢化が進む中で、地域の皆さんがつながり、安心安全に生活できるよう、地域を活性化するまちづくり活動や、生活や地域に密着した生涯学習活動が行える施設づくりを行っています。また、地域の各種団体・組織の拠点施設として、それらの活動を支援するとともに、地域の皆さんとの連携を図っています。
敷地内には桜の木があり、毎年春には満開の花を咲かせます。皆さんの来館をお待ちしています。
申込方法
利用の申込みは、使用日の3か月前の日の属する月の初日から使用日の2日前まで受付けます。
《例》9月10日使用 → 6月1日から9月8日まで申込可能
開館時間中に窓口で申請手続きをしてください。
・使用日時、会場を変更する場合は、使用日の2日前までにお申し出ください。
・利用をキャンセルする場合は、使用日の前日までにお申し出ください。
使用日当日にキャンセルした場合は、使用料の還付ができません。
《例》9月10日使用 → 6月1日から9月8日まで申込可能
開館時間中に窓口で申請手続きをしてください。
・使用日時、会場を変更する場合は、使用日の2日前までにお申し出ください。
・利用をキャンセルする場合は、使用日の前日までにお申し出ください。
使用日当日にキャンセルした場合は、使用料の還付ができません。
◆ 申請書ダウンロード (施設利用料金)
使用許可申請書 (Excel(R7.1~)-.xlsx) (PDF(R7.1~)-.pdf)
使用料免除申請書 (Word:20KB) (PDF:94KB)
施設写真
![]() |
ホール |
※ステージはありません
収容 | 100人程度 |
用途 | 講演会 会議 発表会 |
総会 | |
備品 | 長机30 椅子100 花台 |
演台 音響セット | |
ホワイトボード1 鏡 | |
|
学習スペース |
開館時間内は自由にお使い
いただけます
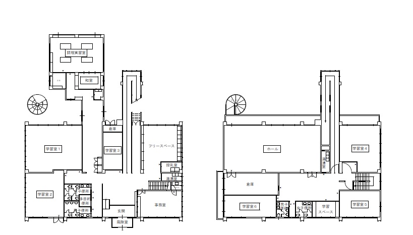
平面図
◎ 敷地面積 | 2851㎡ | ◎ 延床面積 | 1199.44㎡ | ◎ 駐車可能台数 | 50台 |

1階 2階

備考
1 使用開始時間が午前9時~午後0時の間で、使用終了時間が午後1時以降となるとき又は使用開始時間が午後1時~午後5時の間で、使用終了時間が午後6時以降となるときで、当該使用時間が4時間以内の場合は、午後1時~午後5時までの料金とする。
2 冷房又は暖房を使用する際には( )内の料金を別途徴収する。
3 料理実習室料金には、ガス代を含む。
4 上記の金額は、消費税等額を含む。
5 営利目的のために使用する場合の使用料は、基本使用料に100分の250を乗じて得た額とし、使用料の総額に10円未満の端数が生じた場合は、その端数金額を切り捨てた額とする。
(詳しくはコミュニティセンターにお尋ねください。)
※使用時間には準備と後片付けの時間も含みます